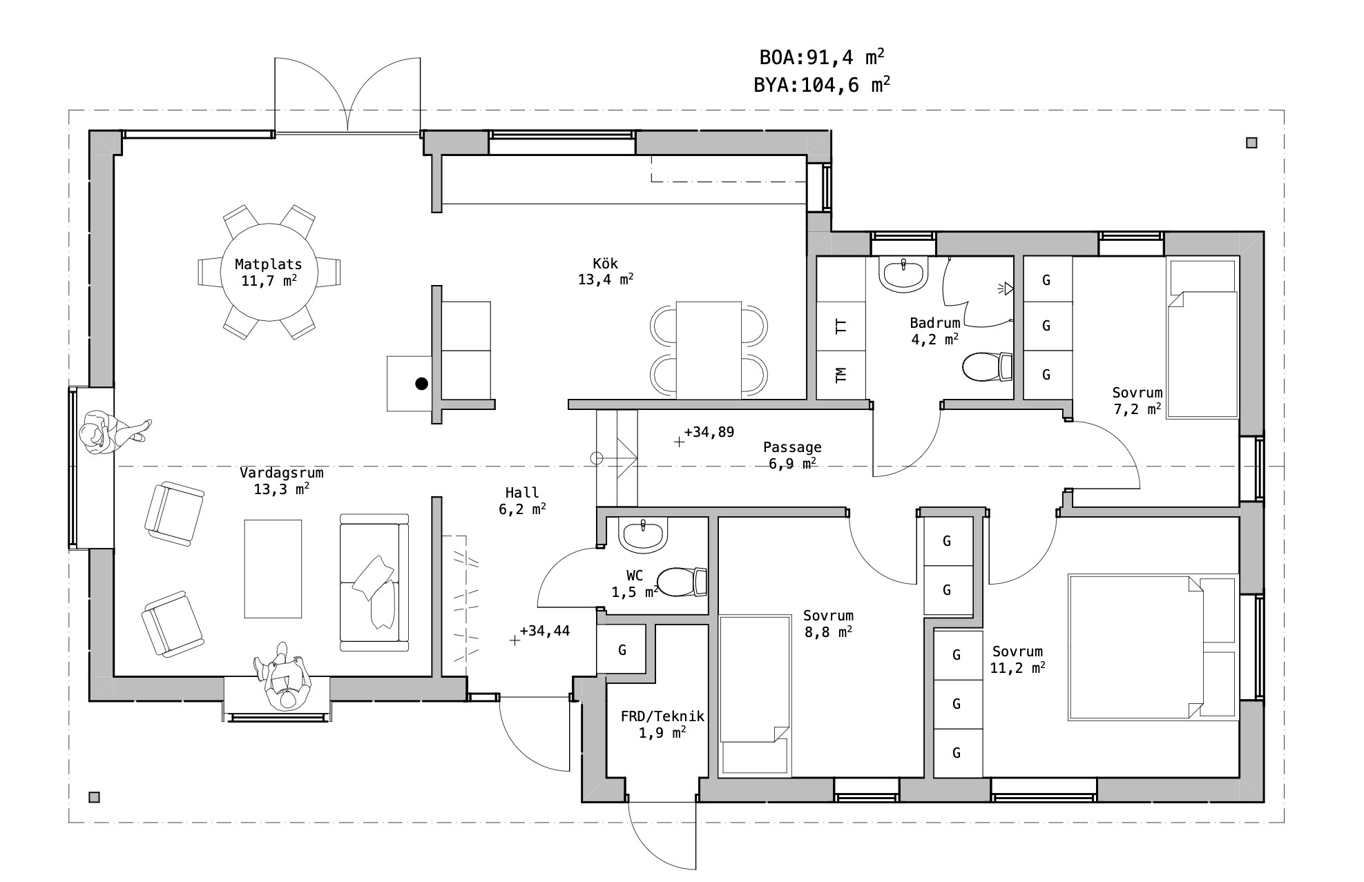
Fritidshus A
På en trolsk naturtomt med utsikt över Tranaröfjärden har vi ritat detta faluröda förslag. Ett fritidshus som gestaltats varsamt i förhållande till omgivande småhusbebyggelse. Tomten utgörs av av ett grönskande skogsparti som sluttar ner i nordvästlig riktning, med en total höjdskillnad på ca 10 meter. Huset placeras varsamt in i förhållande till den sluttande naturen, med respekt för tomtens höjdskillnader. Husets framsida vänder sig ner mot havet och baksidan ramas in av en bergsknall.
Projekttyp
Fritidshus
Plats
Ingarö, Stockholms län
Byggaktör
Privat
Status
Förhandsbesked



