Fritidshus B
Förslag till avstyckning och underlag till ansökan om förhandsbesked för bygglov på Ingarö.
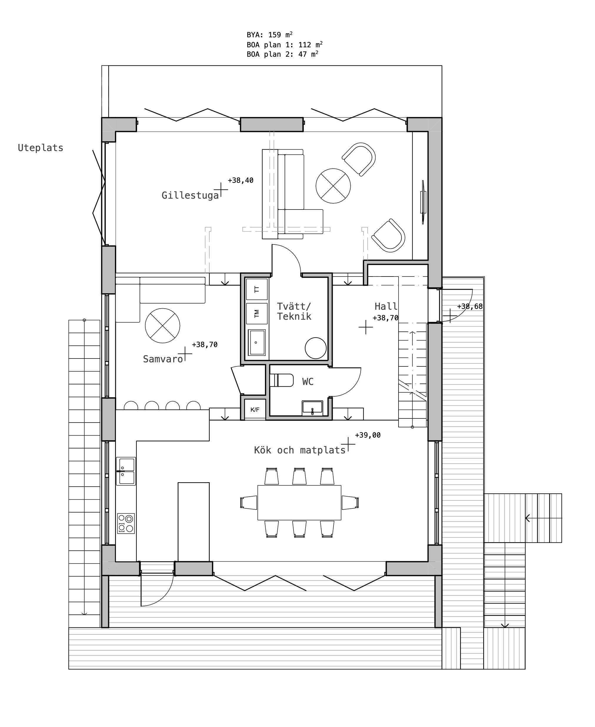
Föreslagen tomt utgörs av en ca 10 meter hög klippa och en grönskande dalgång mot nordväst med vacker skärgårdsnatur. Föreslagen fritidshusbebyggelse är tänkt att placeras in försiktigt på klippans nordvästra sida med plintar på berg som grundläggning med minimal sprängning och anpassning till tomtens marknivåer. Föreslagen nockhöjd ligger under grannfastighetens taklinje.
Projekttyp
Fritidshus
Plats
Ingarö, Stockholms län
Byggaktör
Privat
Status
Förhandsbesked



