Gredelby
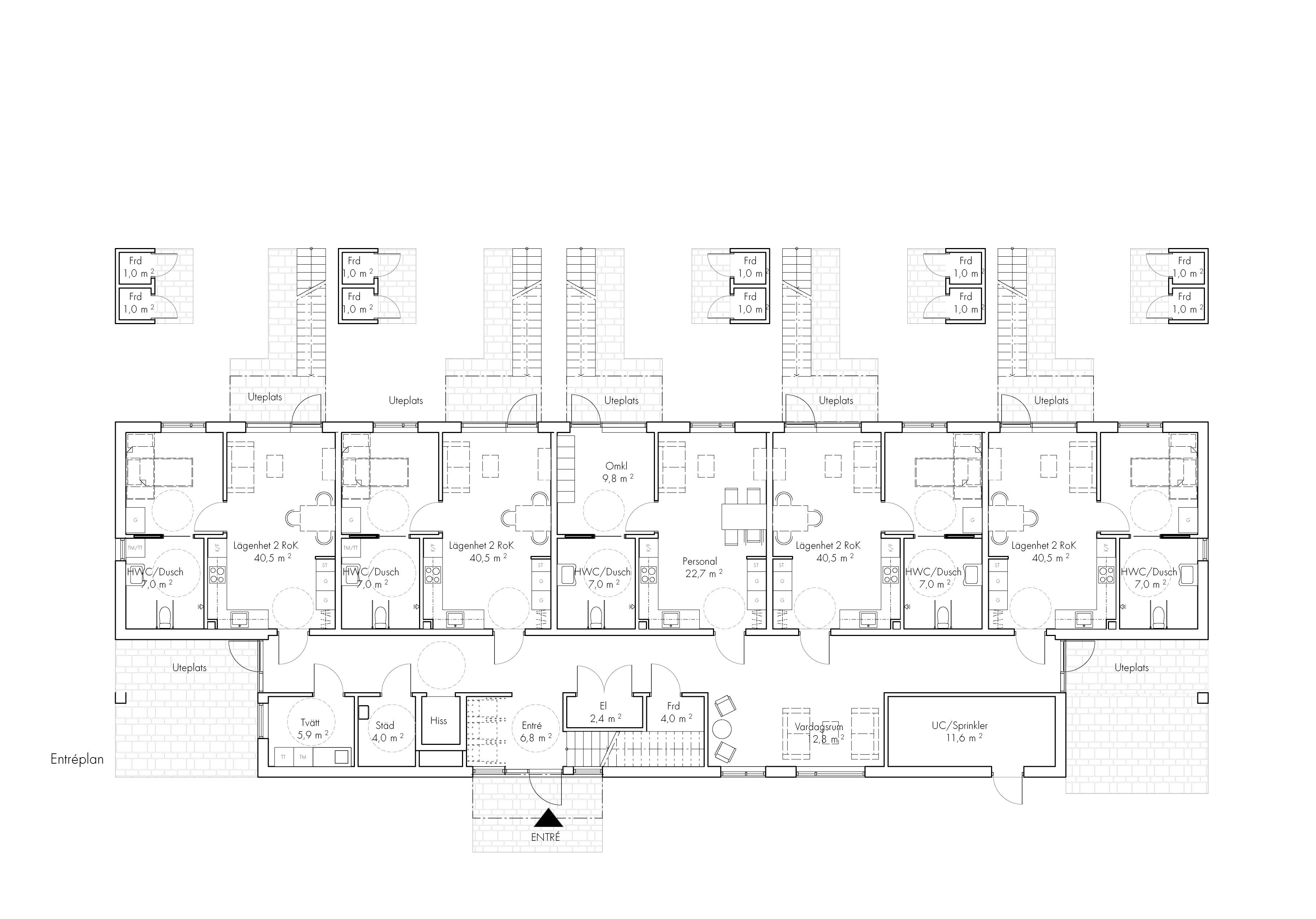
I centrala Knivsta, med närhet till både service och natur, ligger Gredelby LSS – ett modernt gruppboende som förenar funktion, hemkänsla och omsorg. Byggnaden består av en tydlig tvåvåningsvolym med sadeltak, där uttrycket bryts upp av gemensamma balkonger som tillför variation och sociala mötesplatser. Fasaden är klädd i stående träpanel målad i en mjuk grön kulör, vilket ger huset en varm och inbjudande karaktär.
Boendet rymmer åtta lägenheter om cirka 45 kvm, kompletterade med generösa gemensamhetsytor. Här finns plats för både avkoppling och aktivitet, med sällskapsrum och mötesplatser spridda i flera delar av huset. Projektet visar hur omsorgsboenden kan utformas med omtanke om både arkitektur och de boendes vardag – där funktion, gemenskap och estetik samspelar.
Projekttyp
LSS
Plats
Knivsta
Byggaktör
RE Equity Fund
Hyresgäst
Humana
BTA
688 kvm
Status
Färdigställt 2021






