Häggesta
Häggesta gruppboende ligger på en ostörd plats mitt i naturen men samtidigt nära Bollnäs centrum bara 3 km bort. Byggnaden passar väl in i det naturnära området med ett enkelt och tydligt formspråk.
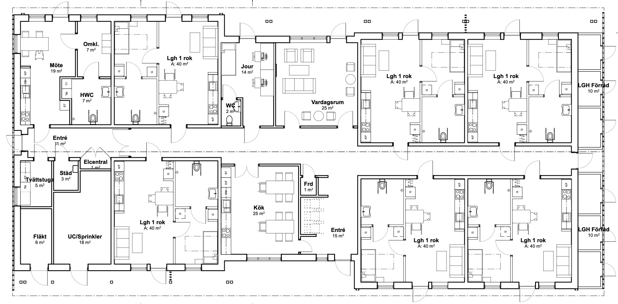
Boendet består av 6 lägenheter i ett plan där alla lägenheter har tillgång till egen uteplats. Fokus har lagts på att öka de boendes självständighet i såväl de privata lägenheterna som i de gemensamma utrymmena.
Projekttyp
LSS
Plats
Bollnäs
Byggaktör
Ascape Arkitektur
Totalentreprenad
Puro Entreprenad AB
Hyresgäst
Humana
BTA
542 kvm
Status
Färdig byggnad





