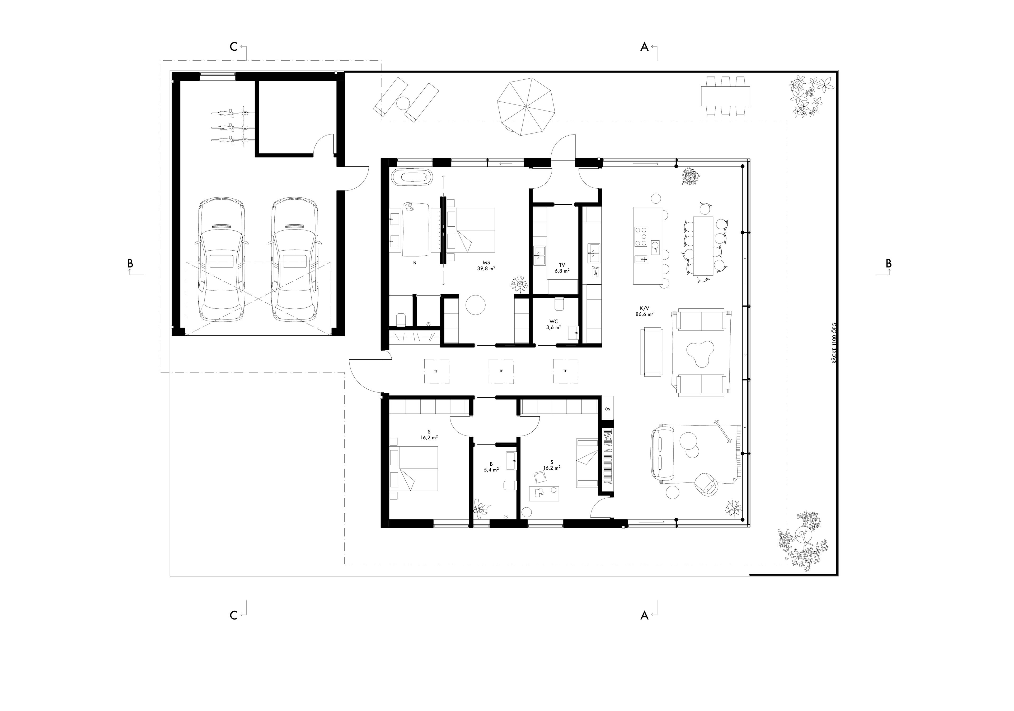
Villa N
På en högt belägen tomt, med en fantastisk utsikt över det småländska höglandet, har vi fått möjligheten att rita Villa N. En villa i ett plan med utskjutande terrass och takutsprång som binder ihop huvudbyggnaden med garagevolymen. Volymerna har placerats varsamt på den branta tomten med utfyllnad mot en stödmur och i övrigt lämnas så mycket som möjligt av naturen orörd. Stora glaspartier och öppna gemensamma ytor är grundpelare i projektet som bygger på rena linjer, fina detaljer och hög precision.
Projekttyp
Privatvilla
Plats
Småland
Byggaktör
Privat
Status
Bygglov


