Villa VE
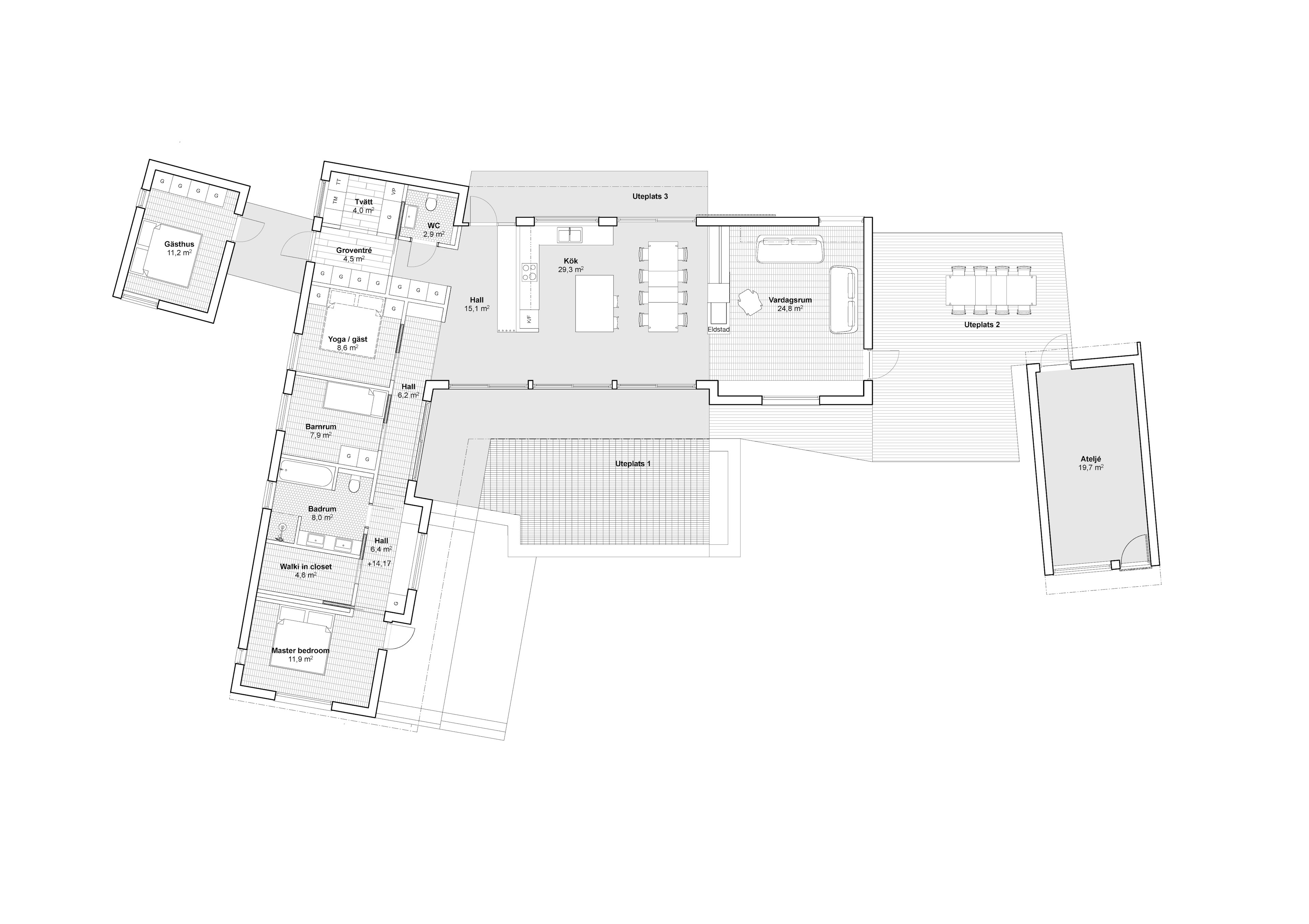
Detta förslag för ett fritidshus ligger på en vacker sjötomt på Yxlö, i Stockholms södra skärgård. Projektet består av tre separata byggnadsvolymer – en huvudbyggnad om 162 kvm, ett gästhus på 15 kvm och en ateljé på 25 kvm – som binds samman genom en generös terrass. En enhetlig gestaltning skapar en harmonisk helhet där de olika volymerna samspelar med varandra.
Planlösningen präglas av tydliga rumsliga grepp där huskroppar, vinklar och nivåskillnader definierar funktionerna. Genom dessa variationer i höjd och orientering skapas ett dynamiskt och välkomponerat boende som samtidigt känns naturligt förankrat i platsen.
Gestaltningen är modern och kännetecknas av en elegant träpanel och de uppbrutna volymerna som samlas kring en centralt placerad uteplats – husets naturliga mittpunkt och mötesplats. De låglutande taken är utformade för både sedum och solceller, vilket stärker projektets hållbarhetsprofil och kopplar samman arkitektur och miljö. Projektet har vuxit fram i nära samarbete med beställaren, en kreativ process som resulterat i ett fritidshus där arkitektur, funktion och hållbarhet samspelar på ett fint sätt.
Projekttyp
Fritidshus
Plats
Yxlö, Stockholms skärgård
Byggaktör
Privat
Status
Bygglov



