Villa Wendborg
Villa Wendborg är ett fritidshus på Gotland, i närheten av Katthammarsvik. Huset är utformat som en enkel volym med brant sadeltak, en form som smälter väl in i den gotländska kontexten. Fasaden är klädd i naturligt trä som harmonierar med den omkringliggande tallskogen, medan stora fönster och genomtänkta siktlinjer skapar ljusa rum med vackra utblickar mot naturen. Genom att låta platsens karaktär prägla både gestaltning och materialval förenar huset enkelhet och kvalitet, och blir ett exempel på hur arkitektritade hus kan smälta in i sin omgivning samtidigt som de erbjuder moderna boendekvaliteter.
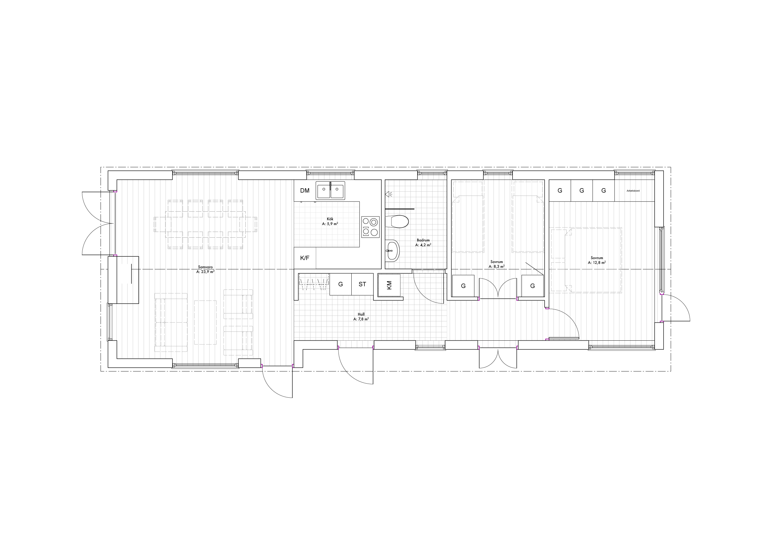
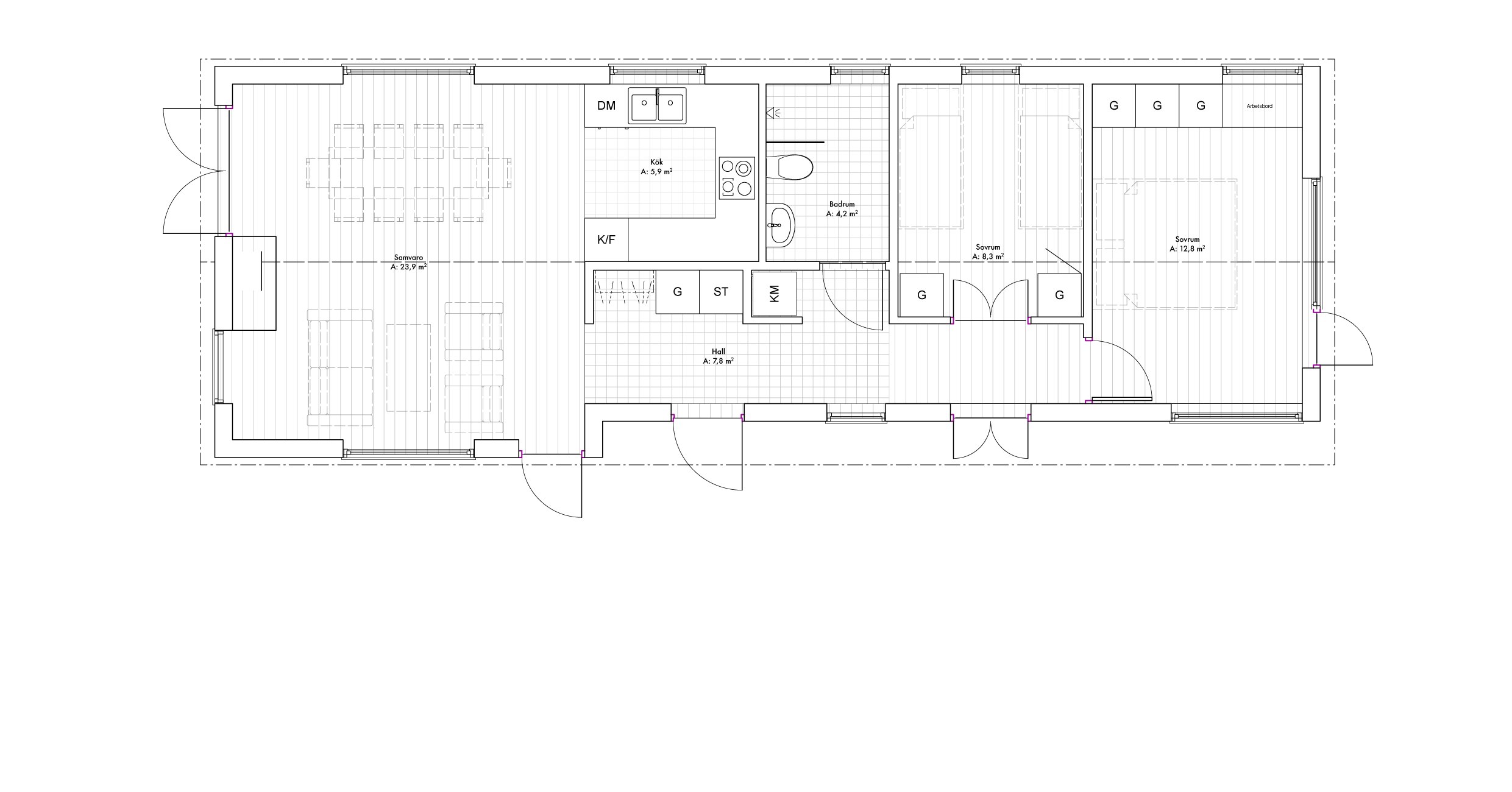
Hjärtat i bostaden utgörs av det generösa vardagsrummet med eldstad, där taket är öppet upp till nock och förstärker känslan av rymd. Planlösningen är effektivt disponerad med två sovrum, kök och sociala ytor som tillsammans gör den 68 kvm stora bostaden både funktionell och rymlig.
Projekttyp
Fritidshus
Plats
Gotland
Byggaktör
Privat
Status
Färdigställt 2024







